© wtg

Ausstattung & Technik

Harzer Kultur- & Kongresszentrum

Ausstattung & Technik

Wir sorgen für den richtigen Ton im Saal.

Im Harzer Kultur- und Kongresszentrum stehen Ihnen folgende Einrichtungen und technische Austattungen zur Verfügung. Unsere Technik ist auf dem  neusten Stand. Gern gehen wir auf ihre Wünsche ein und stellen Ihnen in Zusammenarbeit mit unseren Partnern ihr benötigtes Equipment zusammen.

  • Veranstaltungssaal
    * Großer Veranstaltungssaal: Größe: 482 m²
    * Foyer Veranstaltungssaal: Größe: 239 m²
    * Großer Veranstaltungssaal: Flur links und rechts Größe: 70 m²
    * Foyer Untergeschoß inkl. Besuchergarderobe: Größe: 261 m²
    * Tagungsräume (max. 3 Stück): Größe: 171 m²
    * Foyer Tagungsräume: Größe: 238 m²

    Der Saal läßt sich durch Trennwände in einzelne Säle unterteilen. Damit ist es möglich die Größe des Saals dem Veranstaltungsbedarf anzupassen. Durch das anheben eine Hubbühne ist eine Erweiterung der Bühne bzw. durch das absenken der Hubbühne eine Vergrößerung des Saals möglich. Dadurch sind bis zu 7 verschiedene Varianten der Saalgröße möglich.

    Zum Lageplan der Räumlichkeiten des KiK

     

  • Bühnentechnik
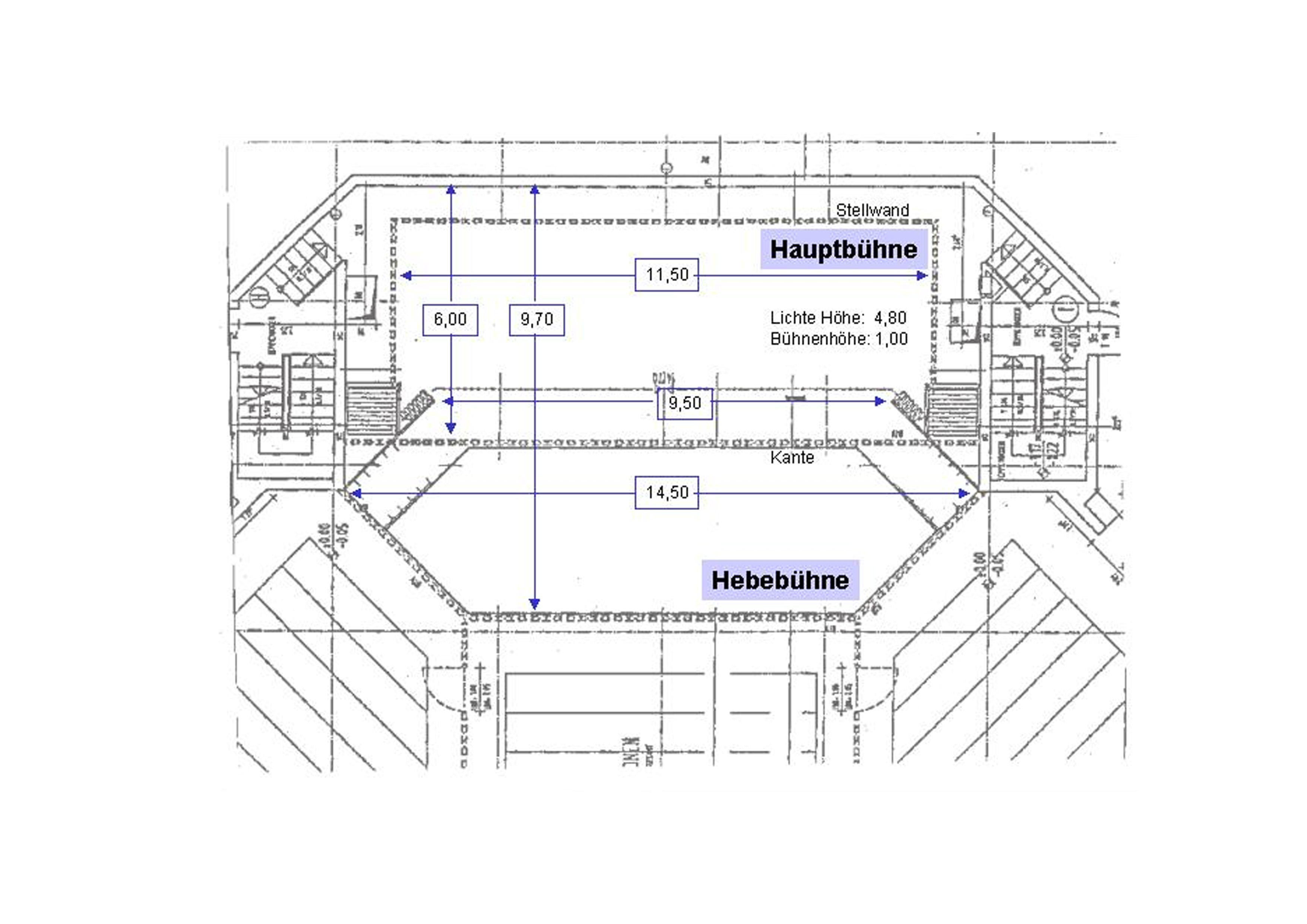
    Im Harzer Kultur- & Kongresszentrum befindet sich eine fest eingebaute Bühne, der eine Hubbühne vorgelagert ist. Die Hubbühne kann entsprechend des Veranstaltungsbedarfs angehoben oder versenkt werden. Bitte beachten Sie, dass sich bei Einsatz der Hubbühne die max. Sitzplatzanzahl im Veranstaltungssaal reduziert.

    Bühne: Größe: 95 m², Ausmaße: 11,5 x 6 x 4,8 m, max. Bestuhlung: 659 Plätze
    Hubbühne: Größe: 42 m², Ausmaße insgesamt: 11,5 x 9 x 4,8 m, max. Bestuhlung: 624 Plätze

    Die Höhe der Bühne beträgt 1 Meter und es sind 3 Handwindenzüge vorhanden.

    Folgende Stromanschlüsse liegen an der Bühne an:
    2 x 63A CEE, 2 x 32A CEE, 2 x 16A CEE, 4 x 16A Schuko

    Zum Bühnenplan des KiK

     

  • Lichttechnik
    Im Saal des Harzer Kultur- & Kongresszentrums steht folgende Lichttechnik zur Verfügung. Diese kann nach Absprache für ihre Veranstaltung angemietet werden. 3 Handwindenzüge stehen zur weiteren Installation von Lichttechnik zur Verfügung.

    beweglich:
    2 Scheinwerfer ARRI Junior 650 Plus, 8 Stufenlinsen, 6 Einschübe, 3 Anschlusskabel, 8 LED Stufenlinsen, 1 Verfolger mit Stativ und Iris

    fest installiert:
    Hauptbühne: 8 PAR 64, 3 Handwindenzüge, 1 Lichtpult - Scan Control (transportabel)
    Vorbühne: 4 ExpoLite TourWash Compact 76, 6 ARRI True Blue ST1, 1 Motor-Traverse

    Zum Plan der Lichttechnik im KiK

     

  • Tagungstechnik
    Nach Absprache kann folgende Tagungstechnik zur Verfügung gestellt werden.
    - Leinwand
    - Mikrophon
    - Beamer
    - Rednerpult
    - Beschallungsanlage (fest installierte Tonanlage mit 6 Deckenboxen zur Sprachübertragung)
    - Lichttechnik

    Instrumente
    Es steht ein Konzertflügel zur Verfügung. Die Stimmung des Flügels liegt beim Veranstalter.

Sie wollen detailiertere Informationen?

Dann nehmen Sie mit uns Kontakt auf.